75 London Wall
Evolving an HQ: our deep assignment in the City
Evolving an HQ: our deep assignment in the City
Breaking the cycle Appropriately for a building on the city's Roman wall, Winchester House – the former headquarters of Deutsche Bank at 75 London Wall – has a defensive feel. We’ve been involved in the project to reposition the building for a number of years, and it has transformed our thinking about how we can break the cycle of demolition and new-build in the Square Mile. By growing new architecture out of existing structures we can achieve a more natural evolution, shaping the next generation of City headquarters buildings.
The art of the possible Our working canvas was a building of monumental scale, a 140-metre-long, ribbon-like yellow sandstone structure that – despite its defensive character, has a certain profile: lots of people love it. It’s a true City of London financial headquarters, stone-built with timeless classicism. Early conversations with the planners established that replacing it with a new tower would be inappropriate, and so we began our deep assignment, developing a proposition shaped by the latent potential of the building.
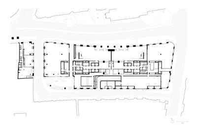
Structural bones Our design is not about old and new; rather it’s a tectonic evolution of the existing structure. Inside the curving groundscraper form, Deutsche Bank had a stack of 3 trading floors, each of around 45,000 sqft, that ran the entire length of the building. To achieve these large spans, the building’s frame was unbonded, post-tensioned concrete, the thin floors supported from the central cores and on external facade columns. Although the sandstone facades are elegantly detailed with classical proportions, they are not inviting and there is very little activity at street level.
Strategic repositioning The large spans – and few columns – meant any structural interventions carried an inherent risk, so we avoided major surgery to the building in favour of tactical moves. Our retrofit sculpts the building from a linear ribbon into a more vertical piece, growing it upwards and visually separating the main volume from the annexe to create a symmetrical elevation onto London Wall. More definition and activity will be introduced into the base, along with an alleyway – Prior’s Court – that will connect into a new pocket park and, beyond it, the historic system of lanes across the City.
A destination for work and culture A 70-metre long window at the base is the building’s new shopfront onto London Wall, opening onto an enlarged, double-height reception. Flexible, street-level commercial spaces onto Prior’s Court and Great Winchester Street lead visitors through to the pocket park and an auditorium space for cultural events, potentially an anchor for the Destination City initiative.
Flexible tenancies There are very few other buildings of such scale in the City, so although the building has the gravitas of a headquarters, it may be that there are multiple tenants. Flexibility in the office space – with small ‘buildings’ within the main one – mean it will be nimble to the market. There will be 13 levels above ground floor (originally there were 8), with the original cores are retained so each floor can work for one or two occupiers.
Stone salvage Increasingly, City tenants have ambitious ESG targets. This, matched with our own commitment to sustainable design, has fundamentally shaped our approach. We adopted a forensic attitude to the retrofit, looking at how we can repurpose materials throughout: stone, for example, is reused where possible for cladding. A material salvage yard means we can also direct materials to other projects.
Biophilic design Biophilia was a design driver, and there are outdoor spaces for workers on most floors, along with landscaped terraces and green roofs at the upper levels. Greener travel has been encouraged too, with almost 900 long-stay cycle spaces for the occupants in the basement end-of-journey facilities, as well as a short-stay cycle hub on the ground floor for visitors and public.
Moorgate, London
Castleforge, Gamuda
Under construction
City of London
















